The Vision & The First Step

In mid-2023, we started looking seriously at the potential of HMOs in the North West. The idea wasn’t just to buy a property, it was to test a repeatable model: purchase below market value, add real value through design and quality, and create stable, long-term cashflow.
We committed to the project in April 2024, following a period of focused education and networking through the Property Investors Network (pin). That decision led us to reach out to Tim and Phil of PPB, specialist HMO Project Managers, who quickly understood our goals and helped guide us toward the right opportunity.
By June, we’d met the PPB team in Swinton and begun the process of aligning expectations. Then in September, we had Station Road on the table as a potential project. It was going to auction....
Acquisition & Legal | Making It Ours
We won the auction for Station Road on 10th October 2024 for £234,000, with an £11,000 reservation fee.
From there, we moved straight into legal and financial setup. We appointed Stamford Legal, who helped us work through onboarding, ID checks, and contract reviews. A dedicated WhatsApp group was created between stakeholders, which has now become the project’s backbone.
Throughout October and November, we worked through lender requirements and solicitor timelines. By 18th December 2024, we had completed the purchase. Station Road was officially ours.
Finance & Funding | When the Numbers Shift
The plan was to purchase the property using a bridging facility arranged through our limited company. Initial terms were acceptable, and we were confident in the numbers, until the valuation report came back lower than expected, which created a funding shortfall.
It was a major challenge, lessons were certainly learned, but it also proved our ability to adapt, communicate, and deliver under pressure. With the gap filled, we completed the purchase and prepared to build.
Design & Planning | From Idea to Intent
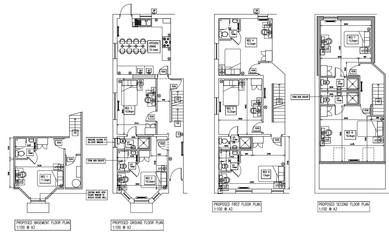
With ownership secured, we moved into design and layout planning in earnest. While a 6-bed layout was achievable by default, there was an opportunity to go further. On 15th January 2025, we made the decision to proceed with an 8-bedroom internal layout, even if it meant initially doing a 6-bed under permitted development and awaiting planning approval for the full conversion.
We held detailed conversations around the planning position, the risks of proceeding without a final decision, and the best way to phase the work. Everything was documented, measured, and assessed.
The design phase included:
- Confirming future funding dependencies
- Reviewing project requirements
- Analysing risks and opportunities
It was also the point where our relationship with the build team fully activated, and the real work began.
Build Phase, Q1 2025 | Progress, Pressure, and Patience
Q1 2025 marked a confident start to the construction programme at Station Road, with visible momentum on site from the outset.
The team moved quickly through the internal strip-out and drainage phases, including the replacement of a key waste pipe beneath the kitchen slab. New internal room layouts are now underway, and roof works have officially started.
The primary challenge this quarter came in the form of a delayed scaffolding permit, caused by external street works on the adjacent road. While this has temporarily affected the dormer programme, the on-site team maintained progress across other areas, keeping the wider project on track and on budget.
The first quarter has set a strong tone, professionally managed, clearly communicated, and fully aligned with our long-term co-living strategy under the Mudpiper Properties brand.-
As of the end of March 2025, the planning decision is still pending. We expect an outcome in April, and there’s a real chance it may need to go to appeal. Either way, we’re prepared.
April 2025 | Planning hurdles and the roof comes off..
As of early April, planning discussions remain ongoing. The main issue raised relates to parking, with planning consultant recommendations that a parking survey be conducted to support the 8-bed HMO proposal. This is in response to committee sensitivities around car space ratios. The survey is booked for late April and will be followed by a formal report in mid-May.
There are 16 objections on record, likely focused on typical HMO themes. If the case goes to committee and is refused despite officer support and a favourable parking report, we would pursue appeal with confidence.
Following completion of the drainage installation and commencement of room partitioning in March, April has seen steady progress internally and externally.
Scaffolding has now been erected, and roof works have commenced with the dormer structure currently under construction. and the site remains well-managed with regular updates from the PPB team.
The staircase has been assembled and is awaiting installation. The project remains on budget, and a revised completion date of 3 August 2025 has been agreed
June 2025 | Roof is watertight and planning is finally approved!
The end of Q2 brought the good news we were waiting for. Full planning permission was officially granted for the 8-bed co-living scheme. This came as a huge relief, particularly given that we had already committed to the 8-bed design and were prepared to fund the additional works from our own capital if planning wasn’t secured, as the bridging loan was only sufficient for a 6-bed permitted development scheme.
It’s a significant milestone, the culmination of months of detailed preparation, coordination with our planning consultant, and professional handling of local objections and highways concerns. The planning officer recommended the scheme for approval, and following a committee review and a referral to the highways subcommittee, the application was successfully voted through.
As part of the approval, we’ve agreed a Section 106 contribution of approximately £3,000, supporting the local authority’s broader housing strategy. In addition, we’ll be installing bat and bird boxes as part of our ecological obligations, addressing environmental feedback received during consultation.
On site, progress continues at pace. Following delays earlier in the year due to external street works, scaffolding has now been erected and roof works are well underway, including the full dormer structure now taking shape.
Internally, the staircase has been assembled and is ready for installation. Room partitioning continues across all floors, and boarding is due to commence shortly.
We remain on track with the revised completion programme. The project remains on budget, with the build now tracking toward a mid August 2025 delivery date.
July 2025 | Last minute funding pressure....
Whilst planning has now been secured, we’re still waiting on the formal issue of the Section 106 agreement. This is a critical document, as the bridging finance was structured around a 6-bed permitted development, with the remaining drawdowns contingent on approval for the full 8-bed scheme.
The delay has meant that we’ve had to temporarily fund the build with a personal directors loan, to maintain momentum on site. Without that flexibility, we would have been forced to seek further short-term investor funding at pace, which we were keen to avoid.
The pressure is now on to ensure the Section 106 is issued and get it across to the bridging provider so that the final two drawdown valuations can be released.
On site, the build itself has continued to move forward at a steady pace, albeit a little behind schedule. The initial JCT completion date was set for 3 July, but two extensions have been agreed:
- 4 weeks due to council delays and scaffolding permit issues
- An additional 2 weeks for expanded dormer construction works
We’re now tracking toward a revised completion target of 17 August, though a late-August finish remains more realistic. Not ideal but not the end of the world. Thankfully this has been built in as contingency, but that is it... no more buffer.
Recent site updates include:
- Insulation and boarding completed in the basement
- Basement now fully skimmed
- Skirting and architraves installed throughout
- Bathroom vanities on site, awaiting installation
- Mist coats going up all over the place. which shows off the rooms nicely.
The PM team continues to closely monitor progress, and the project remains on budget, with agreed variations well within contingency. It feels like we're nearly there on this one.
With another build on the horizon in November '25, and a target project for March '26 also on the cards, (funding permitted), we are sticking to the plan... If we can squeeze in another one or two more in 2026 with pure investor funding that would be a bonus.
In the words of Pete Tong..... "We continue..."
September 2025 | ....and that's a wrap!
We’re proud to announce that the project is now complete. What began in January has been completed by September.
This has been a long journey. There were delays along the way. But in the end, we delivered a high‑quality 8‑bed HMO and more importantly a space fit for eight people to live well.
What Happens Now?
- Apply for the HMO licence
- Get rooms tenanted
- Finalise the commercial valuation
- Refinance onto a long‑term mortgage
That refinance is important as it gives us the ability to extract funds from the project and
move on to the next project.
The Next Projects and an Investment Opportunity..
We already have two new projects on the radar:
- Project 2: November 2025
- Project 3: February 2026
For those projects, we will use bridging finance again as part of the model. But, and this is key, we’re also opening the door to private investors who want to step into the funding stack and earn a fixed return.
If you’re curious about that option, drop us a DM and we’ll talk it through. For more details on how that works, head to our Investors page and check out the explainers. They’ll show you exactly what to expect.
To everyone who invested in this first build, thank you. Your support has made a difference. This 8-bed HMO is the foundation for where we go next. If you want to join us on the journey, from November and beyond, reach out.
Thanks for reading. We’ll post another update soon.































